< Back to Listing
Get a Mortgage
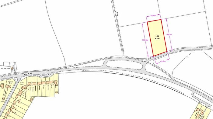
Land For Sale
£29,000
Previously Listed
< BACK TO LISTING DETAILS
Enquire Now
I'd like to receive email alerts with property listings and offers
I'd like to check my credit score on
UKCreditRatings ²
Submit
Send Enquiry
Need Storage for your move?
Check Your Credit Report & Score
×
×
Create an email alert and receive new property listings
Your search:
Your email:
Alert frequency:
Daily
Weekdays
Weekly
×